NJR ha conseguido ayudar a muchos clientes en la industria farmacéutica en el diseño y la fabricación de equipos necesarios en la composición de colirios. Un caso típico se muestra a continuación. Sea cuales sean los requisitos o preocupaciones que tenga al respecto, NJR le ayudará a solucionarlo.
Año del proyecto: 2017
Lugar: provincia de Fujian
Producto: colirios farmacéuticos
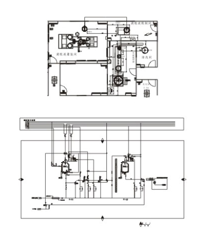
Diseño gráfico
Diseño 3D
Escena de trabajo
Especificaciones del cliente
El cliente necesita cuatro sistemas de almacenamiento de colirio y CIP con las funciones siguientes:
Se precisa control en la composición, flujo, y precisión de filtrado de los materiales;
Con prueba de limpieza y esterilización definitiva;
Ajuste, registro, alarma, correcciones, revisión, descarga e impresión de todo tipo de parámetros de proceso.
Detalles
Control del flujo de materiales mediante la bomba dosificadora. Al mismo tiempo, cada sistema de composición está equipado con un filtro de titanio, de un filtro microporoso de 0.45μm, dos filtros microporosos de 0.22μm y las bombas necesarias.
Cada sistema de composición tiene sistemas individuales CIP y SIP.
Adaptar el sistema PLC y los software específicos para controlar automáticamente el proceso y con distintas claves para el control.