El proceso clave para la formulación intravenosa de lípidos es la emulsión. Uno de los casos clásicos de NJR se muestra a continuación para su referencia. Si necesita formulación de lípidos, no dude en ponerse en contacto con nosotros. NJR personalizará la mejor solución para usted.
Año del proyecto: 2015
Lugar: provincia de Hubei
Producto: emulsión de lípidos
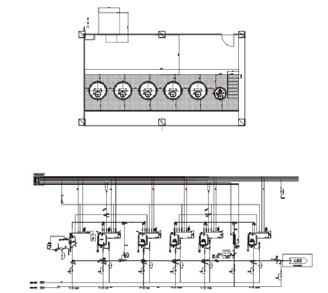
Diseño gráfico
Diseño 3D
Escena de trabajo
Especificaciones del cliente
El pedido en cuestión es un sistema complete incluyendo seis recipientes, con un sistema S7-300 y que están controlados por pantalla dividida. Los seis recipientes son:
Un tanque de fase de aceite de 360L
Un tanque de fase acuosa de 1200L
Un tanque de emulsión de 1200L
Dos tanques homogeneizadores de 1200L
Un depósito de 1200L
Detalles
Para conseguir una mayor emulsión, los tanques de reacción están equipados con agitadores de alto corte y tanques homogeneizadores de alta presión.
Ya que la alta temperatura resultante influye negativamente en la emulsión de lípidos, NJR proporciona un sistema de tuberías con intercambiador térmico.
Teniendo en cuenta que la grasa es difícil de limpiar, este sistema de proceso de emulsión ultravenosa está equipado con limpiadores CIP totalmente automáticos.