Los geles se componen principalmente de agua pura y gelatina. Un sistema mezclador de geles se presenta a continuación.
Año del proyecto: 2017
Lugar: provincia de Hunan
Producto: geles
Diseño gráfico
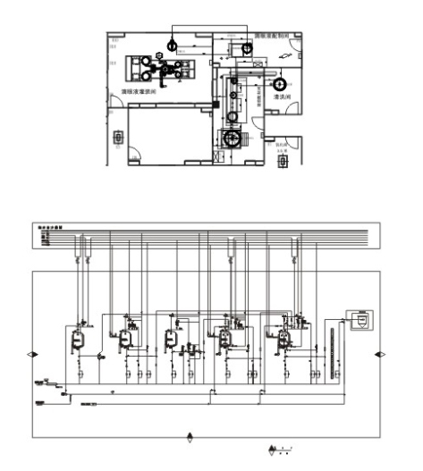
Diseño 3D
Escena de trabajo
Especificaciones del cliente
El proceso de formulación debe llevarse a cabo en temperaturas que oscilan entre 20℃ y 100℃, con una diferencia relativa menor que 2℃.
El coeficiente de llenado máximo no debe superar el 80%
El tanque de almacenamiento debe tener función de alimentación en vacío y capacidades de sellado que sean capaces de soportar -1 bar.
El gel de colágeno tiene tendencia a pegarse en las paredes del tanque influyendo negativamente la reacción. Por lo que debe resolverse adecuadamente.
Detalles
De acuerdo con las necesidades del cliente, el vapor active se introduce en el recipiente para calentarlo de forma indirecta, y asegurando la uniformidad de la temperature.
Calcular la cantidad de la mezcla y controlar el volumen del reactor. Asegurarse que satisface el coeficiente de llenado máximo y mínimo.
Equipar con sistema de vacío de tanques para que el recipiente pueda soportar presión positiva y negativa.
Instalar una espátula en el eje de agitado, más cerca del interior del tanque. El material de la espátula debe ser PTEE, con capacidad para soportar altas temperaturas y la corrosión, y tener una baja capacidad adhesiva.